22m² kontorhotel kontor med udsigt på DOKØEN i Frederikshavn
Havnepladsen 12, 9900 Frederikshavn, Danmark-
Bygning 10, Havnepladsen 12 -
1
Information
- Lot size, m²: 22 m²
- Tilføjet: Tilføjet for 1 måned siden
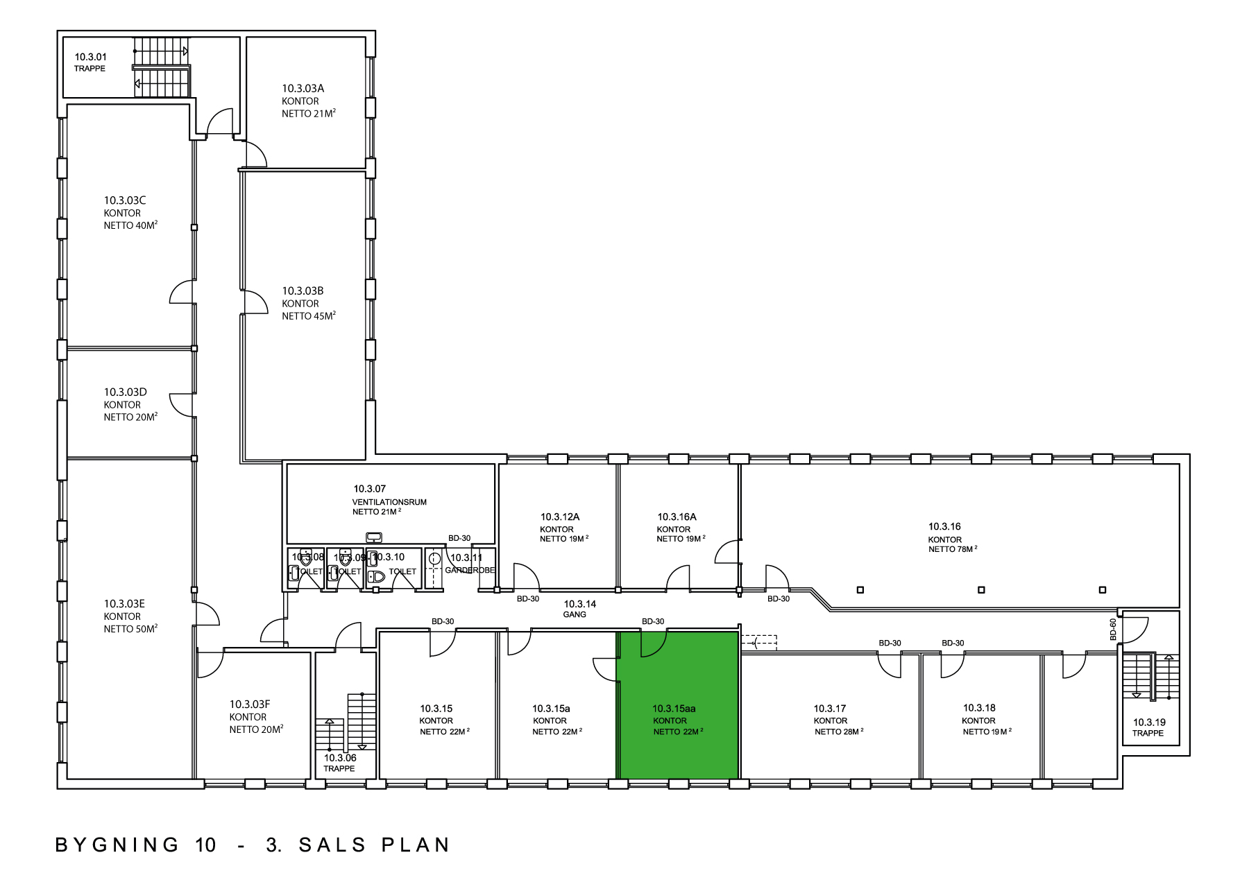
- Bygning: Bygning 10, Havnepladsen 12
- Etage: 3. etage
- Type: DOKØEN, DOKØEN Kontorhotel, Kontor
- Lokale nr.: 10.3.15AA_kontorhotel
- Status: Til leje
- Antal rum: 1
- Antal etager: 1
- Opsigelsesperiode: 1 måneds opsigelse
- Depositum: 0,- kr.
- Lejeudgift: Lejepris pr. år:
36.000
- Årlige fællesudgifter: Inklusiv.
- A conto varme/vand pr. år: Inklusiv.
- Kategori: Til leje
Beskrivelse
- Beskrivelse: NYISTANDSAT KONTOR i DOKØEN KONTORHOTEL TIL LEJE. VELEGNET TIL MINDRE VIRKSOMHED. LEJEMÅLET ER 22 M² og ligger CENTRALT I FREDERIKSHAVN
Reelt kontorhotel lejemål til leje på 22 m² med meget central beliggenhed på 3. sal i markant administrationsbygning på Havnepladsen 12 i Frederikshavn. Kontoret er ideelt til virksomheden, som har brug for 1 All Inclusive arbejdsplads centralt beliggende på havnen i Frederikshavn. Kontorhotel kontoret har en flot udsigt over Frederikshavn Havn mod nord. Kontorlejemålet er nyistandsat. Gulvene er belagt med tæppefliser og lofterne er akustiklofter med planforsænket grundbelysning. Alt er nymalet.
Vinduerne mod nord, giver masser af naturligt lys – og et smukt lysindfald. Lokalet fremstår derfor lyst og venligt.
I den månedlige leje er alt inkluderet lige fra det helt basale som:
- Arbejdsplads med skrivebord (højdejusterbart), kontorstol og reol
- Fri internet og trådløst netværk
- El, vand og varme inkluderet i lejen
- Fri adgang til mødelokaler
- Tekøkken med mulighed for kaffeordning
- Firmaskilt
- Fri Parkering på DOKØENS parkeringsplads
- Mulighed for leje af privat parkeringsplads med firmaskilt
- Frokostordning til rimelige penge i kantinen i bygning 10
- Udsigt over Frederikshavn havn/by
- Mulighed for medlemskab i Fit Club – Kattegat Siloens fitnesscenter
- Rengøring af fællesarealer. Mulighed for at tilkøbe rengøring af kontorlokalet.
Bliv nabo/genbo i et maritimt miljø – til Scanel, Orskov og flere andre virksomheder.
På DOKØEN forefindes gæsteparkering – og det er muligt at leje parkeringsplads til lejemålet.
Kontor udlejes i Frederikshavn
Leder du efter et kontor i Frederikshavn, hvor hver eneste detalje betyder noget? Et sted hvor ordentlige forhold ikke blot er en tilfældighed, men en prioritet? Hos DOKØEN tilbyder vi erhvervslejemål, som lever op til lejernes forventning.
På dokoen.dk finder du et bredt udvalg af kontorlejemål, produktionsfaciliteter, lagerlokaler og møde- og konferencerum i Frederikshavn, designet til at dække forskellige behov. Fra moderne åbne kontorlandskaber til private kontorer, kontorhotel og mødelokaler.
Vores erhvervslejemål: produktionslokaler, lagerbygninger og kontorer er placeret på centralt på havnen i Frederikshavn på adressen: Havnepladsen 12, 9900 Frederikshavn.
Hvorfor skal du vælge DOKØEN?
Kvalitet: Alle vores lejemål er nøje udvalgt for at opfylde de mest krævende standarder. Inden du flytter ind, sørger vores serviceteam for, at alt er klargjort til dig.
Pålidelighed: Med vores mange års erfaring i branchen er vi blevet en betroet partner for adskillige virksomheder.
Skalerbarhed: Uanset om du er en nyopstartet virksomhed, der leder efter dit første erhvervslejemål, eller en veletableret virksomhed, der ønsker at udvide, er vi her for at finde den perfekte lejemålsløsning til dig, der matcher dine behov og budget.
Kundeservice i topklasse: Vores engagerede team står altid klar til at hjælpe dig og besvare eventuelle spørgsmål, du måtte have.
LEJEVILKÅRDepositum: Ingen
Opsigelse: 3 måneders bindingsperiode herefter 1 måned
Øvrige lejevilkår: Klik herServices til vores lejere!
Vi tilbyder en række services, fællesfaciliteter, såsom fitnesscenter, frokostkantine, adgang til møde- og konferencelokaler og gæsteparkering. Vores fællesarealer, faciliteter og ejendomsservice bidrager til at din virksomhed altid fremstår professionel og kompetent.

GRATIS PARKERING
Der forefindes gæsteparkeringspladser (tidsbegrænset) på DOKØEN - og stort parkeringsområde (uden tidsbegrænsning) ved Andelskajen. Det er desuden muligt at leje parkeringsplads med firmaskilt.

FROKOSTKANTINE
Alle lejere kan benytte frokostkantinen i bygning 10 eller kantinen i bygning 15 på DOKØEN. Alle hverdage serveres der forskellige varme og kolde retter.

FITNESSCENTER
Lejere på DOKØEN kan tilkøbe medlemskab i Fit Club Kattegat Silo. Et medlemskab giver fri adgang til fitness- og vægttræningssalen alle dage fra kl. 5-22.
Faciliteter & Services
Beliggenhed
- Land / Region: Danmark


